中国·8827太阳集团

行业动态

了解最新公司动态及行业资讯

异位土壤淋洗是怎么处理废水的

2018-10-24 01:10:06 286 编辑:admin 来源:本站
  土壤是构成自然生态系统的基本环境要素,也是人类赖以生存和发展的物质基 础。随着人类活动对自然环境影响的加剧,人们生产生活过程中所产生的污染物有可能通 过各种途径进入土壤,并超过土壤的容纳和净化能力,从而导致土壤自然功能失调以及土 壤质量恶化,进而可能会对附近人体和周边环境产生严重不良影响。因此,有必要采取合理 的技术手段进行污染土壤修复,从而有效控制土壤污染引起的人体健康和生态环境风险。 
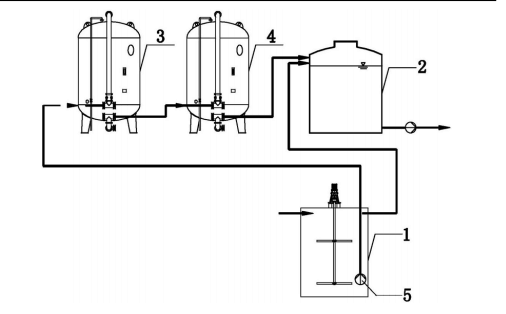
土壤淋洗
   异位土壤淋洗即将受污染的土壤从受污染区域转移到地面反应器内,利用水或其 它淋洗剂,通过螯合、增溶、沉淀等作用,分离土壤污染组分或将土壤中的污染物转移至液 相,再对含污染物的淋洗液进行处理的技术。异位土壤淋洗属于物理/化学修复技术,可用 于处理的污染物质包括重金属及半挥发性有机污染物、难挥发性有机污染物等,具有有效 降低土壤污染物浓度、操作灵活,过程可控,修复速度快等优点。

30

装备制造经验

立即免费获取土壤修复方案

为用户提供及时、高效、便捷的服务

在线咨询
中国·8827太阳集团环境希望与你携手,共创美好未来...
5